Development land of 21,4132 hectare Centurion . Situated nearby the Copperleaf Golf Estate with a Ernie Els designed Golf Course.

Ref # 2336519
R24,000,000
Property Details
21.41ha

21.4 Ha of Development Land situated on a Portion the Farm Knopjeslaagte . The peace of land amounts to a size of 21,4 hectare and falls within the peri-urban area of Centurion. The development area is situated nearby the Copperleaf Golf Estate with a Ernie Els designed Golf Course.

The property was acquired in 2004 by the current owner and is unencumbered.

Since 2005 various studies which include a noise impact study, traffic impact studies, geological investigations and environmental impact studies were done all with positive results. Legislation requires that some studies be updated from time to time if the development has not been completed. Consent was obtained from a mineral right holder from the

adjacent property owner to proceed with the establishment of a township and there is no other mineral rights applicable on the land to prevent land development.

A letter of no objection (subject to the usual conditions) was received from Gautrans. Storm water will be disbursed to the west of the property, and the owner has a contract with the adjacent owner for a services servitude.

A quotation was already received by Eskom which indicated that Eskom power was available since 2011 and a fresh quotation can be obtained if necessary.

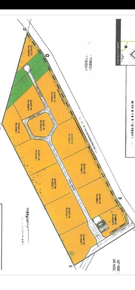
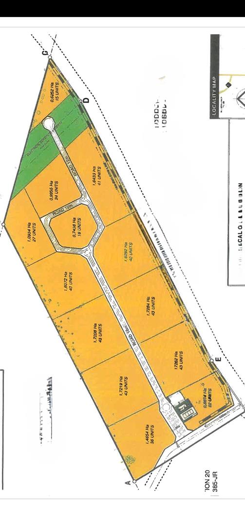
The current landowner has drawn up a proposed layout for an Estate with 435 Units, which includes proposed Security Complexes as well as large Stands, just as an example.

Fantastic opportunity for Developers of Luxury Properties or any other.

Come and look at your dream Development by contacting me for a viewing!

Come and develop your dream Estate!

Property Features
Property Type
Vacant Land Residential
Land Size
21.41ha
Video Tour
Share this Property
Make an enquiry
Interested in this property? Please fill in your details below, and we will contact you as soon as possible.
By clicking on "submit" you agree to our privacy policy.