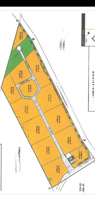
Knoppieslaagte properties